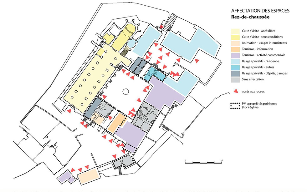
Baume-les-Messieurs bénéficie d’un environnement naturel très spectaculaire, et d’un patrimoine majeur, au centre duquel se trouve l’ancienne abbaye bénédictine, conservée mais démembrée depuis la Révolution et divisée en propriétés privés. L’étude tend à placer le site dans la perspective d’une politique de type Grand Site, avec une gestion volontaire des flux touristiques et le développement d’une démarche de restauration, de médiation et d’animation ambitieuse et de grande qualité.
Au-delà des orientations générales, l’étude propose un programme d’actions concrètes pour enclencher une dynamique vertueuse, créer des habitudes de coopération entre les collectivités, enrichir la connaissance historique et archéologique et mettre progressivement en place une structure unifiée de gestion.
Notre mission comprend le diagnostic du patrimoine et du territoire, la production du schéma directeur de valorisation et l’animation des démarches de concertation.
Partenaires : Protourisme (mandataire), Vu d’ici paysagiste, J. Tournant médiation






